5 locali in vendita

Verona, Via Luigia Poloni - Valverde
€ 420.000
5 locali 5 locali
155 Mq 155 Mq
2 bagni 2 bagni

5 locali in vendita

Verona, Via Luigia Poloni - Valverde

Descrizione annuncio

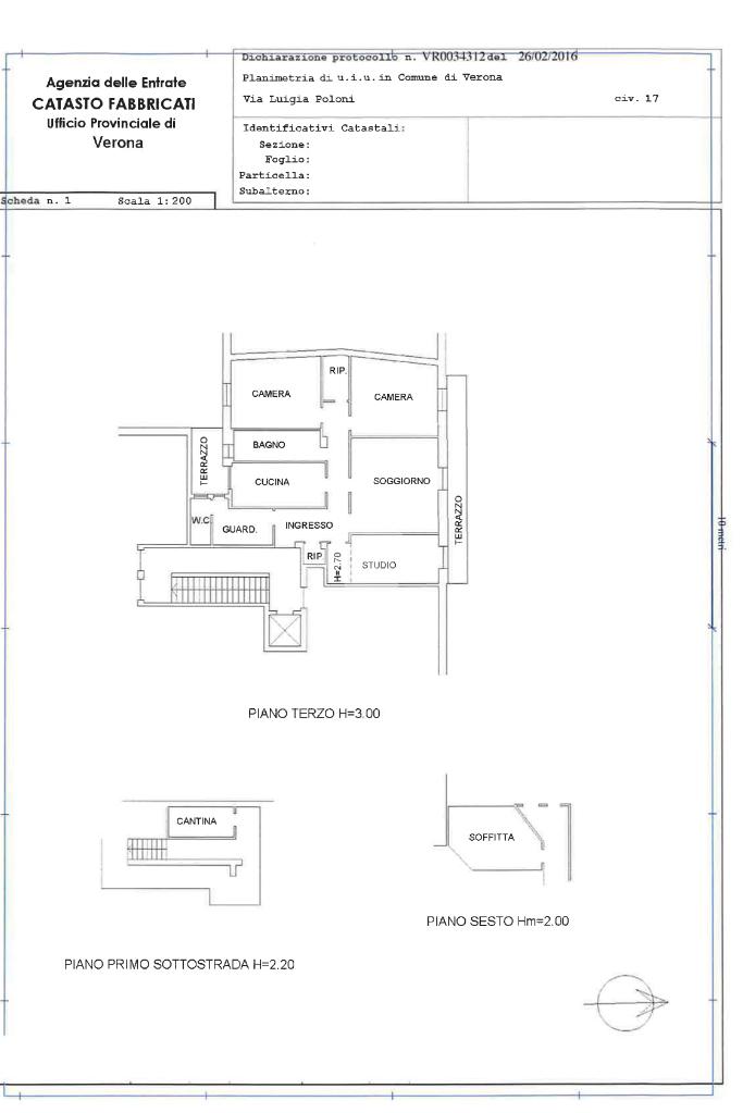
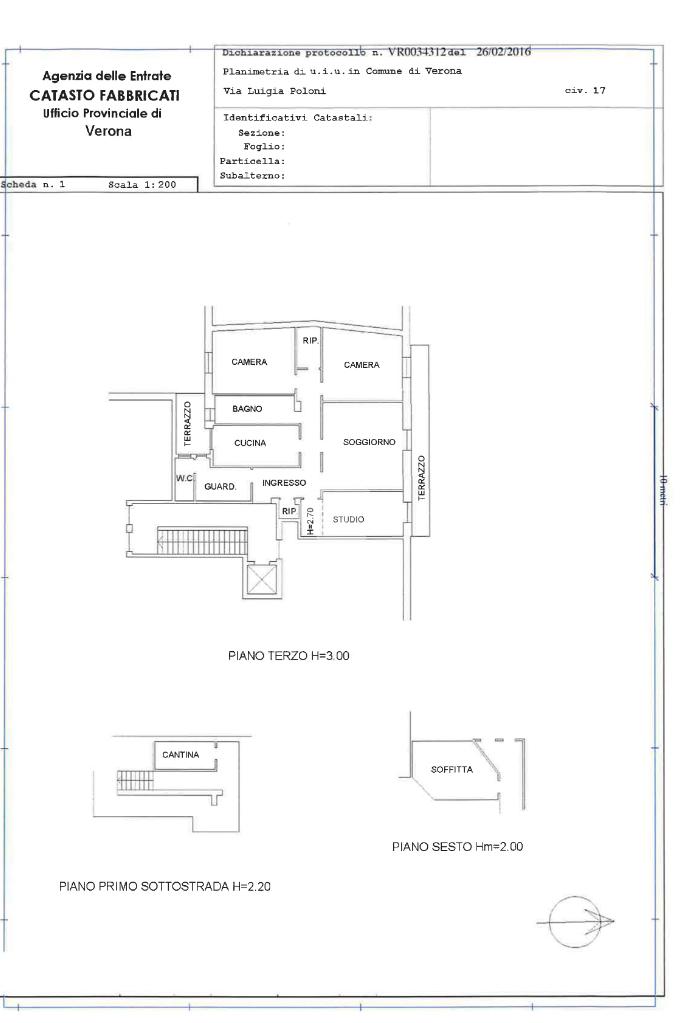
AMPIO APPARTAMENTO RISTRUTTURATO

VALVERDE - Nel cuore di Valverde, in posizione strategica tra Via Marconi e Via della Valverde, proponiamo in vendita ampio appartamento situato al terzo piano, inserito in un contesto condominiale fornito di ascensore.

L’immobile, ristrutturato circa 15 anni fa, si distingue per la generosità degli spazi interni e per la distribuzione razionale degli ambienti.

L’ingresso conduce ad un corridoio centrale che organizza in modo ordinato la disposizione della casa, separando in maniera equilibrata la zona giorno dalla zona notte.

La zona giorno è composta da un ampio e luminoso soggiorno e da una cucina abitabile separata, entrambi ambienti comodi e funzionali per la vita quotidiana e per momenti di convivialità

La zona notte invece si compone di due camere da letto matrimoniali e una camera doppia, adatte a soddisfare le esigenze di una famiglia o di chi necessita di spazi aggiuntivi per studio o lavoro.

Sono presenti due bagni, entrambi finestrati, un pratico ripostiglio e un comodo guardaroba all’ingresso, che rendono la casa ancora più funzionale e ben organizzata.

Completano la proprietà una cantina al piano interrato e una soffitta al piano sesto, ideali come spazi accessori per archiviazione o deposito.

L’appartamento è inserito in un contesto residenziale tranquillo ma estremamente comodo, a pochi minuti a piedi dal centro storico, dalla stazione ferroviaria, da scuole, supermercati e mezzi pubblici.

Mostra tutto

Nelle vicinanze

Trasporto pubblico Trasporto pubblico
stazione di Verona Porta Nuova
stazione di Verona Porta Nuova
790 m
Verona Porta Vescovo
Verona Porta Vescovo
2,5 Km
Via Scalzi 22
Via Scalzi 22
170 m
Via Scalzi 25
Via Scalzi 25
180 m
Ricariche auto elettriche Ricariche auto elettriche
Hotel Giberti
190 m
AGSM - Piazza Cittadella
550 m
AGSM - Piazza Arsenale
720 m
AGSM Via Pallone
810 m
AGSM - Via Porta San Zeno
1,1 Km
Scuole Scuole
ITG Cangrande Della Scala
290 m
Scuola Media Vittorio Betteloni
350 m
Scuola Elementare Angelo Messedaglia
380 m
Centro scolastico Fortunata Gresner
410 m
C.F.P. Scuola Trento
410 m
Farmacia Farmacia
Farmacia Comunale Grattacielo
140 m
Farmacia Comunale Agli Angeli
280 m
Castelvecchio
360 m
Farmacia San Luca
390 m
Farmacia Internazionale
490 m
Ospedali Ospedali
Ospedale Civile Maggiore
1,9 Km
Supermercati Supermercati
Eurospar
350 m
Pam
420 m
Natura Si
490 m
Aldi
610 m
Conad
940 m
Negozi Negozi
Panificio Barbieri
120 m
Alpigusto
240 m
La Bottega di Grazia
410 m
Pam
410 m
Carrera Store
420 m
Bar Bar
Muretto
160 m
Tugò Cafè
380 m
Torcolino
420 m
Bar Arsenale
650 m
Pecoranera
760 m
Ristoranti Ristoranti
Ristorante Tre Risotti
10 m
Kulmbacher Bier-Haus
80 m
Angelucci's
140 m
Bella Napoli
180 m
Dulcamara vegan bio bistrot
190 m
Mostra tutto

Caratteristiche

Rif.:
61142669
Piano:
3 di 6 con ascensore (Piano medio)
Balconi:
1
Terrazzi:
1
Camere da letto:
3
Arredamento:
Assente
Mostra tutto
Prezzo Prezzo
€ 420.000
Rata mutuo Rata mutuo
€ 1.995 / mese
Spese annue Spese annue
€ 2.300
Proponi il tuo prezzoProponi il tuo prezzo

Classe Energetica

E
E
E
E
E
E
E
E
E
EP globale non rinnovabile:
289.01 kW h/m² anno
EP globale rinnovabile:
1.20 kW h/m² anno
EP invernale del fabbricato:
EP estiva del fabbricato:
Anno di costruzione:
1960
Riscaldamento:
Centralizzato
Tipo impianto:
A radiatori
Tipo alimentazione:
Metano

Ti interessa visionare l'immobile?

Fissa un appuntamento  Fissa un appuntamento

Richiedi informazioni

Clicca su Leggi per aprire l'informativa
* Questi campi sono obbligatori

Calcola il tuo mutuo

Semplice e senza impegno
Anticipo

( % )
Mutuo

( % )

pochi semplici passi

inserisci i tuoi dati
Questionario completato
Grazie per aver richiesto un appuntamento senza impegno con un nostro Consulente del Credito e Assicurativo.

Hai inserito correttamente tutti i dati necessari e a breve riceverai una e-mail con un link da convalidare per inviare i tuoi dati.
Affiliato
Immobiliare San Zeno Srl
Via Stradone Porta Palio, 45 37122 Verona (VR)

Il nostro staff


  • Alberto Caldera
    Affiliato

  • Graziano Neri
    Responsabile

  • Floriana Barbetti
    Collaboratrice

  • Felice Carifi
    Collaboratore

  • Lucrezia Ceriani
    Coordinatrice

  • Gianni Schena
    Collaboratore

  • Aurora Selouane
    Collaboratrice
Via Stradone Porta Palio, 45 37122 Verona (VR)
Zona: Centro - San Zeno - Valverde
Mostra su mappa
Orari: lun - ven dalle 9:00 alle 12:30 dalle 15:00 alle 19:30, sab dalle 9:00 alle 12:30
Affiliato
Immobiliare San Zeno Srl
Via Stradone Porta Palio, 45 37122 Verona (VR)

2026 Tecnocasa Franchising S.p.A. - P. IVA 08365160152 - Via Monte Bianco 60/A 20089 Rozzano (MI). Ogni agenzia ha un proprio titolare ed è autonoma. Privacy policy | Policy utilizzo | Cookie policy